new
Villa Te koop in Huldenberg
Veeweidestraat 52 bus Lot-A, 3040 Huldenberg
€ 652.203
3 Slaapkamers
1 Badkamer
170m²
Bewoonbare opp.
2363m²
Perceeloppervlakte
Tuin
Omschrijving
Uw droomwoning op maat in het hart van Sint-Agatha-Rode
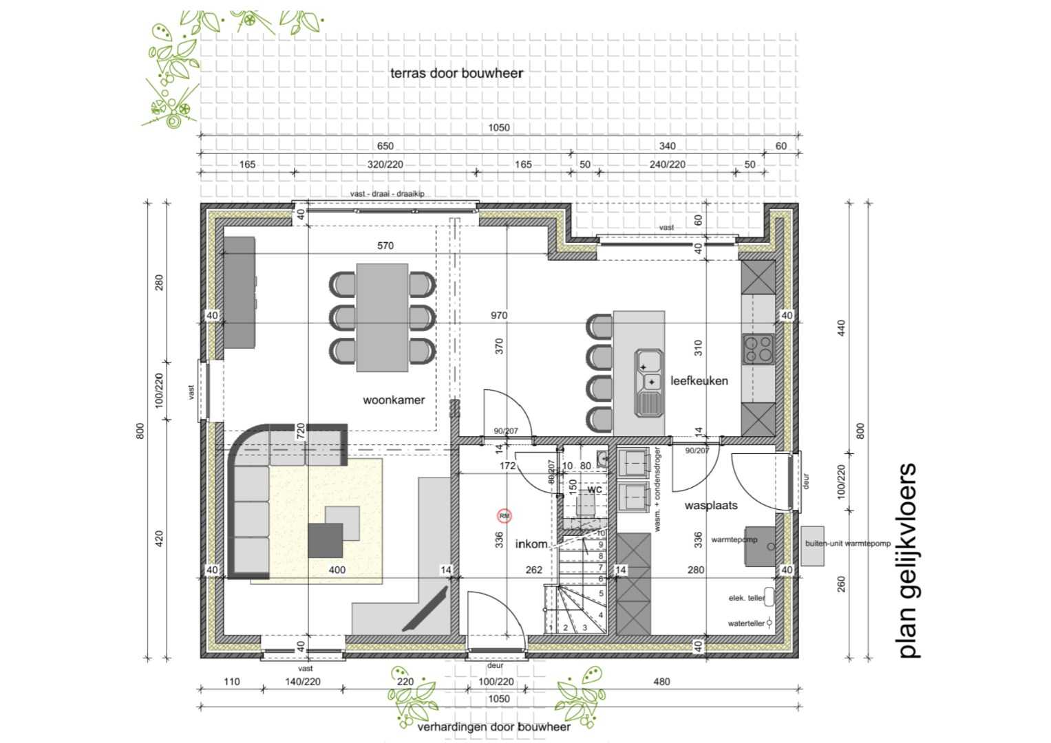
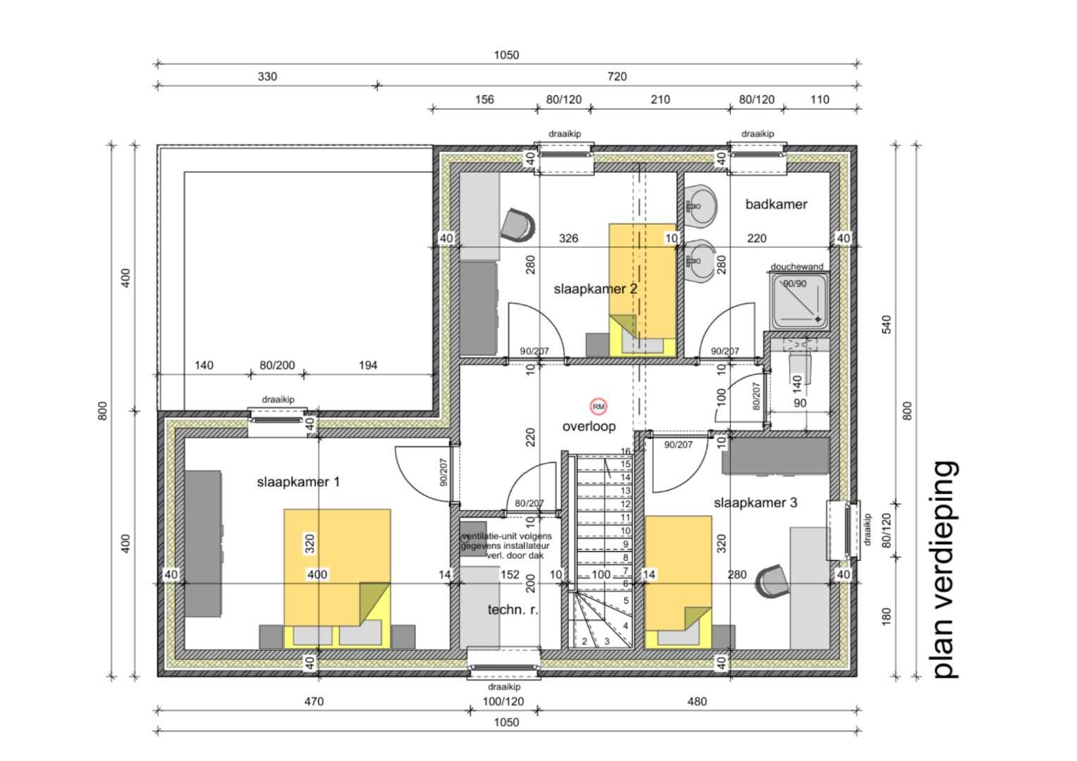
Op een riant, vlak perceel van 23 are in het charmante Sint-Agatha-Rode realiseren we uw nieuwbouwwoning volledig volgens uw eigen smaak en wensen. Deze prachtige ligging, zuidwest georiënteerd, biedt een perfecte combinatie van rust, ruimte en zon — de ideale plek om te wonen, te ontspannen en te genieten. De voorgestelde woning (voorbeeldplan – volledig aanpasbaar) heeft een bewoonbare oppervlakte van circa 170 m² en is voorzien van de nieuwste duurzame technieken: ✅ Warmtepomp ✅ Vloerverwarming ✅ Zonnepanelen ✅ Ventilatiesysteem D+ Elke keuze wat betreft indeling, materialen en afwerking kan in overleg worden bepaald, zodat uw woning volledig aansluit bij uw levensstijl en persoonlijke voorkeur. Detotale prijs van deze woning bedraagt € 756.315, inclusief 12% registratierechten op de grond en 21% btw op de constructie. Deze unieke eigendom biedt een uitgelezen kans om uw droomwoning te realiseren op een uitzonderlijke locatie – midden in het groen, met alle comfort en kwaliteit die u mag verwachten. 📞 Meer informatie en plannen beschikbaar op kantoor.
Details
Referentie
TK/25231
Type constructie
Traditioneel
Perceelbreedte
20.15 m
Perceeldiepte
119.9 m
Beschikbaar vanaf
WHEN_READY
Slaapkamers
3
Badkamers
1
Toiletten
2
Tuin
Ja
Tuinoriëntatie
Zuid-West
Kadastrale Nummers
C326 L P0000
Niet geïndexeerd K.I.
13
Stedenbouwkundige vergunning
Nee
Voorkooprecht
Ja
Dagvaarding en herstelvordering
Geen rechterlijke herstelmaatregel of bestuurlijke maatregel opgelegd
Verkavelingsvergunning
Ja
Stedenbouwkundige bestemming
Woongebied met landelijk karakter
Erfgoed
Geen beschermd erfgoed
Erfdienstbaarheid
Geen
Overstromingsgevoelig
Geen overstromingsgevoelig gebied
Overstromingsgebied
Geen afgebakende zones
P-score
D
Ligging
Boek een bezoek
Veelgestelde vragen
Bij de verkoop van een woning komt heel wat papierwerk kijken, het is niet zo maar wat bezoekjes doen of alleen maar de verkoopovereenkomst en de notariële akte. Al van bij de start moet u een aantal attesten en documenten kunnen voorleggen die voor kandidaat-kopers belangrijke informatie zijn en vaak de doorslag geven in hun beslissing om een woning aan te kopen.
Lees meerIn principe komt een verkoopovereenkomst tot stand wanneer je een akkoord hebt over de prijs en het onroerend goed.
Lees meerAls het gaat om een bestaande woning, dan zijn er geen wettelijke bepalingen en zijn koper en verkoper vrij om zelf regels op te stellen. Dat betekent dus dat ze evengoed overeen kunnen komen om geen voorschot te betalen.
Lees meerEen bod uitbrengen kan schriftelijk of mondeling, maar ook via mail of sms. Toch raden wij aan om het altijd schriftelijk te doen, zo heb je altijd tastbaar bewijs.
Lees meerWanneer u een woning gaat verkopen of verhuren, dan moet u een EPC of energieprestatiecertificaat kunnen voorleggen. Dit certificaat toont aan de koper of huurder hoe energiezuinig uw pand is.
Lees meerHet ondertekenen van een compromis of onderhandse verkoopovereenkomst is in principe niet noodzakelijk.
Lees meerHet niet verplicht om je stookolietank te laten keuren bij verkoop van je woning.
Lees meer




